Imagine 98

Casa Deosebită de Vânzare în Stupini, Brașov

Aceasta proprietate nu mai este activa! Pentru oferte similare contactati agentul
ID: P890 Brasov, Stupini 69
329.000€ 339.000€
Descriere
ID Proprietate: P890 – Vilă superbă de vânzare în Stupini, Brașov

Vă prezentăm o proprietate deosebită, tip vilă, situată în una dintre cele mai apreciate zone rezidențiale din Brașov – Stupini. Locația se remarcă prin liniște, aer curat și dezvoltare constantă, oferind un echilibru excelent între viața aproape de natură și accesul rapid către centrul orașului.

Această vilă este ideală pentru o familie care își dorește confort, spațiu, funcționalitate și calitate superioară în toate detaliile.

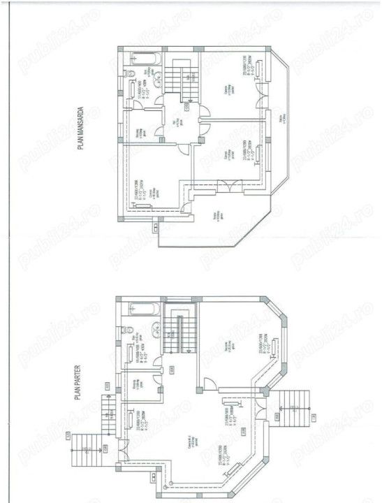
Detalii generale ale proprietății

Teren: 808 mp

Suprafață desfășurată: 279 mp

Suprafață utilă: 230 mp

An construcție: 2018

Regim de înălțime: Demisol + Parter + Mansardă

Camere: Living + 3 dormitoare

Băi: 2

Dressing-uri: 2

Stare: Finisaje premium, proprietate excelent întreținută

Compartimentare
Demisol

Cameră tehnică dotată cu centrală pe lemne Viessmann

Puffer de 1000 L pentru eficiență energetică

Pivniță generoasă pentru depozitare

Parter

Living spațios, luminos, cu acces direct către curte

Bucătărie complet mobilată și utilată

Dressing

Baie modernă

Încălzire prin pardoseală pentru confort sporit

Mansardă

3 dormitoare mari și luminoase

Dressing

Baie modernă

Încălzire prin calorifere, fiecare cameră având termostat propriu

Dotări și avantaje

Centrală termică pe lemne Viessmann, cu puffer de 1000 L – consum redus și autonomie crescută

Izolație exterioară cu polistiren grafitat de 10 cm

Curte complet amenajată: gazon, pomi fructiferi, alei pavate

Foișor generos – perfect pentru relaxare sau evenimente în aer liber

Spațiu acoperit pentru depozitarea lemnelor

Două locuri de parcare în curte

Materiale de calitate superioară, finisaje premium

Utilități

Casă complet intabulată

Conectată la apă și gaz

Canalizare în curs de finalizare pe strada principală

Proprietarii pun la dispoziție fotografii și filmări din toate etapele construcției, pentru transparență totală

Localizare

Proprietatea este situată într-o zonă rezidențială nouă din Stupini, cu acces rapid către:

Centre comerciale

Școli și grădinițe

Transport public

Puncte cheie din Brașov

Zona este liniștită, sigură, cu vecinătate de calitate – ideală pentru familii.

Se acceptă achiziție prin credit bancar.

Onorariu și informații suplimentare

Onorariul agenției Ramia Imobiliare Invest este de 2% din valoarea tranzacției.
Toate informațiile sunt furnizate de proprietar, iar documentația completă va fi verificată la momentul unui interes real pentru achiziție.

Contact – Vizionări și detalii

Agent dedicat: Marcel Ilinca – Consultant Imobiliar
Telefon: 0767 370 688
Adresă: Str. Olteț nr. 16, spațiu comercial nr. 5, Brașov
Website: ramia-imobiliare.ro

Contactează-ne pentru a programa o vizionare și pentru detalii suplimentare despre această proprietate unică!
Caracteristici
  • ID:P890
  • Nr. camere:4
  • Nr. dormitoare:3
  • S. utila:230.00 mp
  • S. terase:20.00 mp
  • S. construita:279.00 mp
  • S. teren:808.00 mp
  • Nr. bucatarii:1
  • Nr. bai:2
  • Nr. balcoane:2
  • Nr. parcari:2
  • Front stradal:26.00 m
  • An constructie:2015
  • Structura rezistenta:Caramida
  • Regim inaltime:P+M
  • Clasa energetica:B
Video
Specificatii
Curent
Apa
Canalizare
Gaz
Put
Fosa septica
CATV
Acces internet
Utilitati in zona
Centrala proprie
Centrala pe lemne
Calorifere
Izolatie Exterior
Vopsea lavabila
Faianta
Parchet
Gresie
Ferestre Aluminiu
Ferestre Termopan
Jaluzele Orizontale
Usa intrare Lemn
Usa interior Celulare
Pivnita
Spatiu depozitare
Dressing
WC Serviciu
Anexe
Dependinte
Bucatarie Mobilata
Bucatarie Utilata
Apometre
Contor gaz
Mobilat Lux
Curte
Gradina
Localizare
Ana Ioana Ilinca
Manager
Esti interesat de aceasta proprietate ?